Objektart
Adresse
Objektdaten
Informationen
Ausstattung
Details
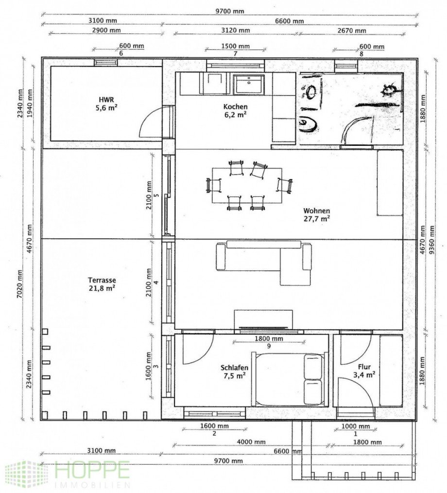
Entdecken Sie Ihren Traumbungalow in Möllenhagen! Dieses neuwertige, charmante Haus in ansprechender Holzbauweise bietet Ihnen alles, was Sie für ein komfortables Zuhause benötigen. Mit einer Wohnfläche von 55,4 m² und einem großzügigen Grundstück von 1.000 m² ist dieses Objekt perfekt für Ruhesuchende und Naturliebhaber.
Das Herzstück bildet ein helles Wohnzimmer mit offener Küche - perfekt, um gemeinsame Momente zu genießen. Dazu gehört ein gemütliches Schlafzimmer sowie ein modernes Duschbad. Ein Highlight ist die überdachte Terrasse mit fast 22 m² Fläche, ideal für entspannte Stunden im Freien. Das großzügige Grundstück umfasst ca. 1.000 m², bietet Raum zur Entfaltung im Garten und Privatsphäre. Ein eigener Stellplatz neben dem Haus sichert Komfort direkt vor der Haustür. Die Immobilie wird verkauft inclusive des vorhandenen, hochwertigen und geschmackvollen Mobiliars - einziehen und wohlfühlen ab Tag eins!
Der Bungalow verfügt über 2 Zimmer, 1 Schlafzimmer und 1 Badezimmer. Die hochwertige und geschmackvolle Möblierung sorgt für ein sofortiges Wohngefühl. Die moderne Wärmepumpe garantiert eine effiziente und umweltfreundliche Heizung.
Hier sind einige Highlights dieses attraktiven Angebots:
- Neuwertiger Zustand
- Geschmackvoll und hochwertig möbliert
- Großzügiges Grundstück mit 1.000 m²
- Außenstellplatz für Ihr Fahrzeug
- Praktischer Abstellraum
- Barrierefreier Zugang
- Einbauküche inklusive
Genießen Sie die Vorzüge eines barrierefreien Zugangs und den Komfort einer voll ausgestatteten Einbauküche. Der gepflegte Garten lädt zu entspannten Stunden im Freien ein. Dieses Haus bietet Ihnen nicht nur ein Zuhause, sondern auch eine Oase der Ruhe und des Komforts.
Nutzen Sie diese einmalige Gelegenheit und machen Sie diesen Bungalow zu Ihrem neuen Zuhause!
Der Bungalow ist sehr hochwertig ausgestattet und bietet modernen Wohnkomfort bis ins Detail:
Küche: Einbauküche mit Induktionskochfeld, integriertem Dunstabzug, Backofen, Mikrowelle, Geschirrspüler sowie Kühl- und Gefrierkombination - alles Markenqualität.
Badezimmer: Modern gefliestes Tageslichtbad mit WC, Handwaschbecken und Walk-In-Dusche.
Fußboden: Im gesamten Wohnbereich Parkett - warm und wohnlich.
Heizung: Moderne Wärmepumpe kombiniert mit Fußbodenheizung sorgt für effiziente, angenehme Wärme.
Möblierung: Geschmackvolle Einrichtung ist bereits vorhanden und Teil des Angebots - ideal, wenn Sie direkt einziehen wollen, ohne Aufwand für Ausstattung.
Die Lage dieser Immobilie in Möllenhagen bietet eine ideale Mischung aus Ruhe und hervorragender Anbindung an wichtige Verkehrsknotenpunkte. Nur einen kurzen Fußweg von 3 Minuten entfernt finden Sie den öffentlichen Personennahverkehr (ÖPNV), der Sie bequem zu verschiedenen Zielen bringt.
Diese Immobilie eignet sich vielseitig:
Selbstnutzung: Ideal als Hauptwohnsitz für Paare oder Einzelpersonen, die Wert auf Komfort und Pflegeleichtigkeit legen.
Ferienimmobilie: Durch die Nähe zur Müritz und zur Seenplatte bietet sich ein attraktives Angebot als Ferienhaus - insbesondere wenn Sie vermieten wollen.
Dauervermietung: Auch als langfristiges Mietobjekt denkbar - entweder raren Wohnraum in ruhiger Lage oder als Ferienwohnung mit guter Auslastung in der Ferienzeit.
Bei der Verwendung als Ferienhaus müssen allerdings lokale Regelungen zur Vermietung geprüft werden (z. B. Baunutzungsrecht, Genehmigungen, Steuer). Für Dauervermietung sind Zustand und Ausstattung der Immobilie bereits sehr gut - Beheizung, Möblierung, Küche - all das spricht für geringe Einstiegskosten und hohe Attraktivität für Mieter.
Wenn Sie Interesse haben, laden wir Sie herzlich ein zu einer Besichtigung vor Ort, damit Sie sich persönlich von der Qualität und dem Charme dieser besonderen Immobilie überzeugen können. Wir freuen uns auf Ihre Anfrage!
Der Energieausweis ist beantragt und liegt zur Besichtigung vor.
HINWEIS: Diese Immobilie wird transparent über ein professionelles und digitales Angebotsverfahren (Bieterverfahren) verkauft. Der MINDESTgebotspreis beträgt 140.000,00 EUR. Nach dem erfolgten Besichtigungstermin erhalten Sie von uns per Mail eine Einladung inklusive Link zum Angebotsverfahren und können dort Ihr Kaufgebot abgeben. Somit ist der gesamte Prozess für Sie unkompliziert und übersichtlich gestaltet.
Energieausweis (Bedarfsausweis)
44,42 kWh / (m²*a) Endenergiebedarf
44,42 kWh / (m²*a) Endenergiebedarf
44,42 kWh / (m²*a) Endenergiebedarf
Weitere Informationen
| Wesentlicher Energieträger | Strom |
| Energieausweis Ausstelldatum | 2025-09-17 |
| Energieausweis gültig bis | 16.09.2035 |
| Energieausweis Jahrgang | bei_besichtigung |
| Energieausweis Werteklasse | A |
| Energieausweis Baujahr | 2023 |
| Energieausweis Gebäudeart | Wohngebäude |
| Befeuerung | Elektro |
Ich bin damit einverstanden, dass mir Karten von Google angezeigt werden. Es gelten die Datenschutzbedingungen von Google (https://policies.google.com/privacy).
Ich bin einverstanden